
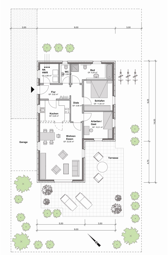
Die DÜMA baut für Sie Ihren individuellen Bungalow "Bernstein 110"
-> Bungalow 9,75m x 12,30m
-> barrierefrei
-> Wohnfläche 106m²
-> großer Wohn- Essbereich
-> offene Küche
-> Heißkostensparende Wärmedämmung nach KFW
Standard
-> Hochwertige Markenkunststoff- Fenster mit
Isolierverglasung
Kaufpreis: Bungalow 139.700,-- € inkl. Mwst
(zzgl. Maler- und Oberbödenarbeiten)
Erdgeschoss






