
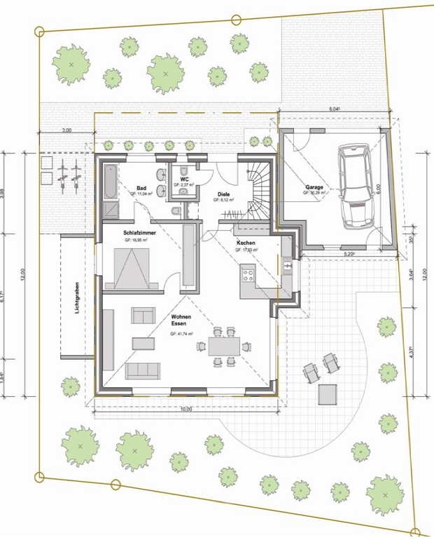
Die DÜMA baut für Sie Ihren individuellen Bungalow "Bernstein 120"
-> Bungalow 10,00m x 12,00m
-> barrierefrei
-> Wohnfläche ca. 98m²
-> Massivbauweise mit Verschlussblende
-> Zeltdach Betondachsteineindeckung mit 30-
jähriger Garantie
-> Heißkostensparende Wärmedämmung nach KFW
Standard
-> Hochwertige Markenkunststoff- Fenster mit
Isolierverglasung
Kaufpreis: auf Anfrage
Erdgeschoss







