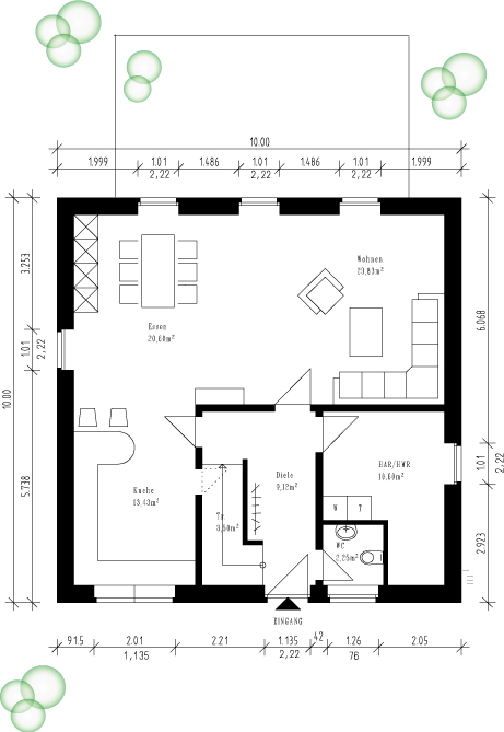
Fakten
Modulhaus
-> 1 1/2 geschossig
-> 10 m x 10 m
-> Drempel 1.00 m
-> Satteldach 40°
-> Wohnfläche ca. 146 qm
-> Solaranlage (brauchwasserunterstützend)
- auch möglich als KFW 70 Effizienthaus, Preis
auf Anfrage -
Preisliste
| Nummer | Bezeichnung | Preis |
|---|---|---|
| 1. | Schlüsselfertighaus (Massivbauweise inkl. Solartechnik Brauchwasser) | 144.800,- € |
| 2. | Ausbauhaus (ohne Ausbau-Gewerke) | 98.700,- € |
| 3. | Betonkeller Schlüsselfertig | 26.500,- € |
| 4. | Betonkeller Ausbauhaus | 20.600,- € |
| 5. | Schlüsselfertig Kamin ohne Keller | 2.800,- € |
| 6. | Schlüsselfertig Kamin mit Keller | 3.100,- € |
| 7. | Mehrpreis für eine
Fußbodenheizung im EG und Bad im DG
inkl. 3 Stück Raumthermostate mit 5 Stellantrieben |
3.900,- € |
| 8. | Mehrpreis für Rollladen bei Putzbau | 2.850,- € |
| 9. | Mehrpreis für Rollladen bei Verblendbau | 2.390,- € |
| 10. | Umstellung Verblendung/Verfugung statt Putzbau | 5.750,- € |
| 11. | Elektrischer Rollladenmotor Typ Somfy
inkl. GIRA Digital Schaltzeituhr je Fenster |
290,- € |
| 12. | Elektrischer Rollladenmotor Typ Somfy
inkl. örtlichem Schalter je Fenster |
195,- € |
| 13. | Aufpreis für KfW 70 Effizienshaus mit
Wärmepumpe, inkl. Fußbodenheizung EG + DG |
17.600,-€ |
Erdgeschoss
Dachgeschoss/Spitzboden







